Eerste contouren van Geesters nieuwbouwplan Hutten ingetekend

21 mei 2014, 10:18Kleintjes
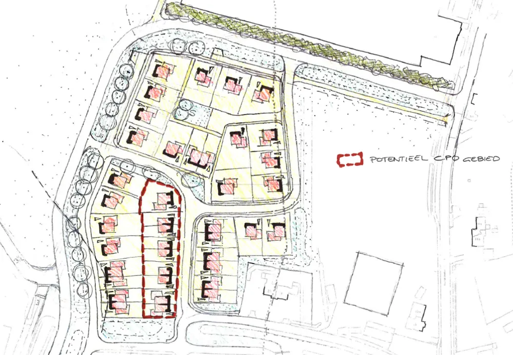
hi8ubjumee99mjp5dmrtqxlv1 plangebied
Als er geen bezwaren binnenkomen, kan er begin 2015 worden gestart met bouwen op plan Hutten in Geesteren. Dat maakte wethouder Erik Volmerink gisteravond bekend tijdens een informatiebijeenkomst van Dorpsbelang Geesteren in Zaal Kottink.Van de 109 aangeschreven mensen die geïnteresseerd zijn in een nieuwbouwkavel in Geesteren hebben zich er 37 gemeld. In de eerste schets die de gemeente gisteravond openbaarde zijn alvast 40 kavels getekend.
Van de 37 belangstellenden hebben 9 mensen aangegeven mee te willen doen aan een CPO-project. Dit staat voor Collectief Particulier Opdrachtgeverschap en betekent dat bouwers samen met de directe buren een woning ontwikkelen. Hierdoor is het mogelijk producten en diensten voor een lagere prijs in te kopen.
Planning bestemmingsplanprocedure:
  1. Voorontwerp bestemmingsplan - juni 2014
  2. Ontwerp bestemmingsplan - september 2014
  3. Vaststelling bestemmingsplan - december 2014
  4. Onherroepelijk bestemmingsplan - januari 2015
Planning bouwrijp maken:
  1. Voorbereiding bouwrijp maken - ongeveer 6 maanden (juni-december)
  2. Uitvoering bouwrijp maken - ongeveer 3 maanden (december-maart)
2014-05-20-20
loading

Loading articles...

Loading