
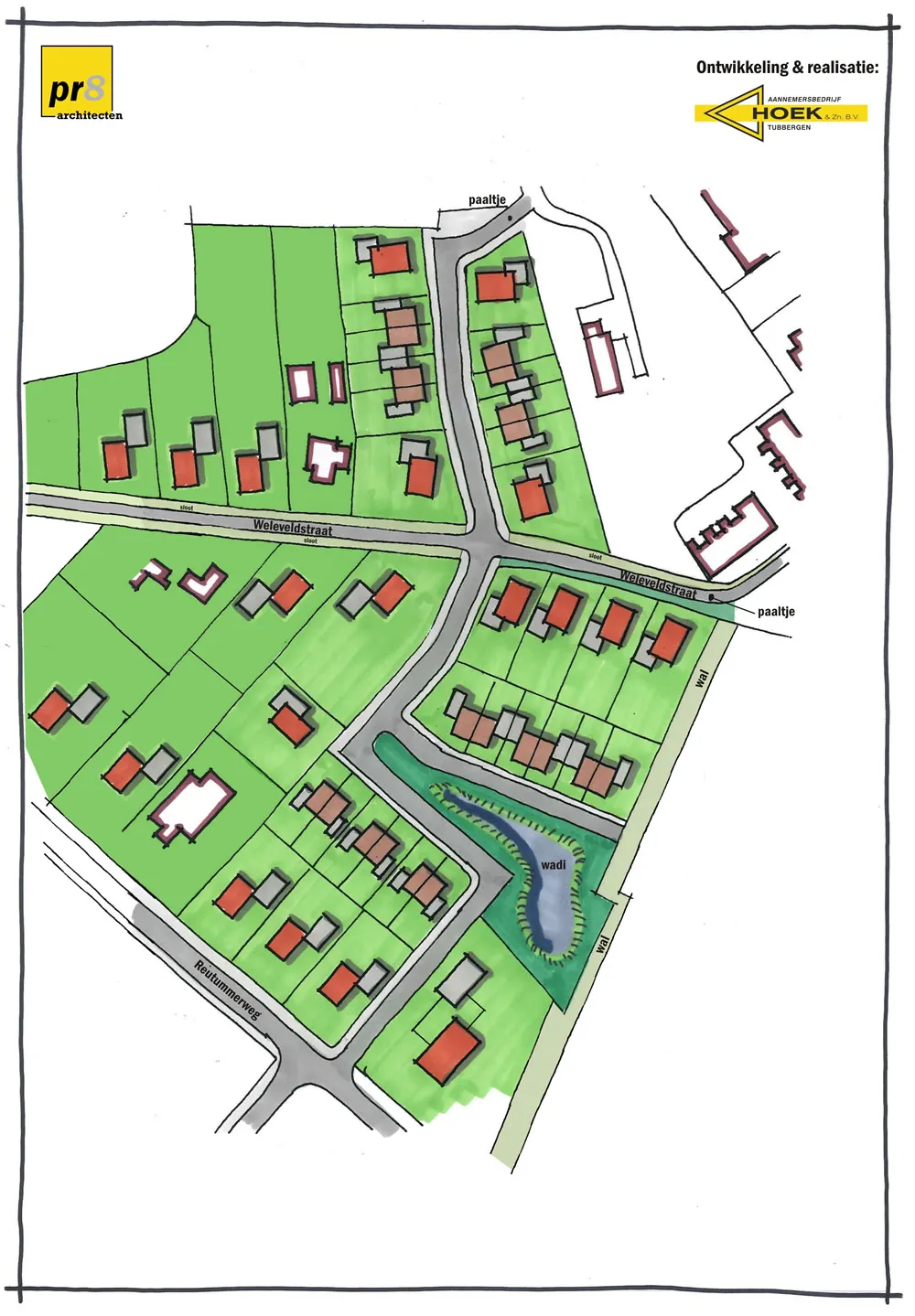
Er hebben zich binnen een paar dagen al vele belangstellenden aangemeld voor de nieuwbouwplannen die Aannemersbedrijf Hoek & Zonen afgelopen week gepresenteerd heeft bij de gemeente. Het gaat daarbij om een welhaast compleet concept, waarbij alle grondeigenaren – waaronder de gemeente zelf – akkoord zijn. De direct betrokkenen die nog niet op de hoogte zijn gebracht, informeert de aannemer zo spoedig mogelijk.
Het wachten is nu op de gemeenteraad, dat z'n fiat moet geven. "De oproep die we aan de raadsleden doen is om nu aan te geven of ze ook de mogelijkheden van dit plan zien en zich in de ontwikkeling hiervan kunnen vinden. Reden hiervoor is dat het ontwikkelen van zo’n bouwplan veel kosten met zich mee brengt. Als de gemeenteraad bij voorbaat al zegt dat ze geen heil zien in dit plan, dan kunnen we er beter direct mee stoppen. Maar gezien de faciliterende rol van de gemeente en de uitnodiging die ze gedaan hebben om met een gezamenlijk plan te komen, hopen we natuurlijk op een positieve reactie", aldus de directie van planontwikkelaar Hoek. "Er is uitdrukkelijk rekening gehouden met de gemeentelijke visie op ruimtelijke ordening. Daarna heeft een ambtenaar van de afdeling ruimtelijke ordening toestemming gegeven om het principeverzoek in te dienen. Het mooie is dat met dit plan ook een gedeelte gemeentegrond wordt ontwikkeld voor woningbouw voor inwoners van onze gemeente. Het voldoet daarmee dus ook aan de wens van onze gemeenschap."
"Het plan dat er nu ligt, kan snel worden uitgevoerd omdat - gezien de locatie en de samenwerking met de buurt - zienswijzen niet in de lijn der verwachting liggen. Goed nieuws dus voor mensen die al geruime tijd wachten op een woning. Belangstellenden kunnen zich dan ook altijd melden bij ons", benadrukt de bouwfirma uit Tubbergen. "Uiteraard hopen wij dat dit bouwplan positief benaderd wordt door de verschillende partijen. We zijn dan ook blij dat men onze uitnodiging om het plan toe te lichten hebben aangenomen. We hopen op groen licht van de raadsleden voor een snelle ontwikkeling hiervan. Dat is ook één van de redenen dat wij de raadsleden hebben opgeroepen om ons bouwplan op de agenda te zetten van de eerstvolgende raadsvergadering."
In ieder geval staat of valt dit bouwplan met de mening van de gemeenteraadsleden, aldus Aannemersbedrijf Hoek & Zonen."De ontwikkelingskosten van dit plan zijn aanzienlijk en in het verleden is het meerdere keren voorgekomen dat ons bedrijf een mooi plan had ontwikkeld dat vervolgens geen draagvlak had bij de gemeente. Vandaar dat we nu voor een andere werkwijze kiezen. Eerst kijken we of het plan draagvlak heeft bij de raadsleden, voordat we verdere kosten gaan maken. Met andere woorden, de direct betrokkenen zijn akkoord, gemeente heeft gefaciliteerd en nu is het dus aan de gemeenteraad."