
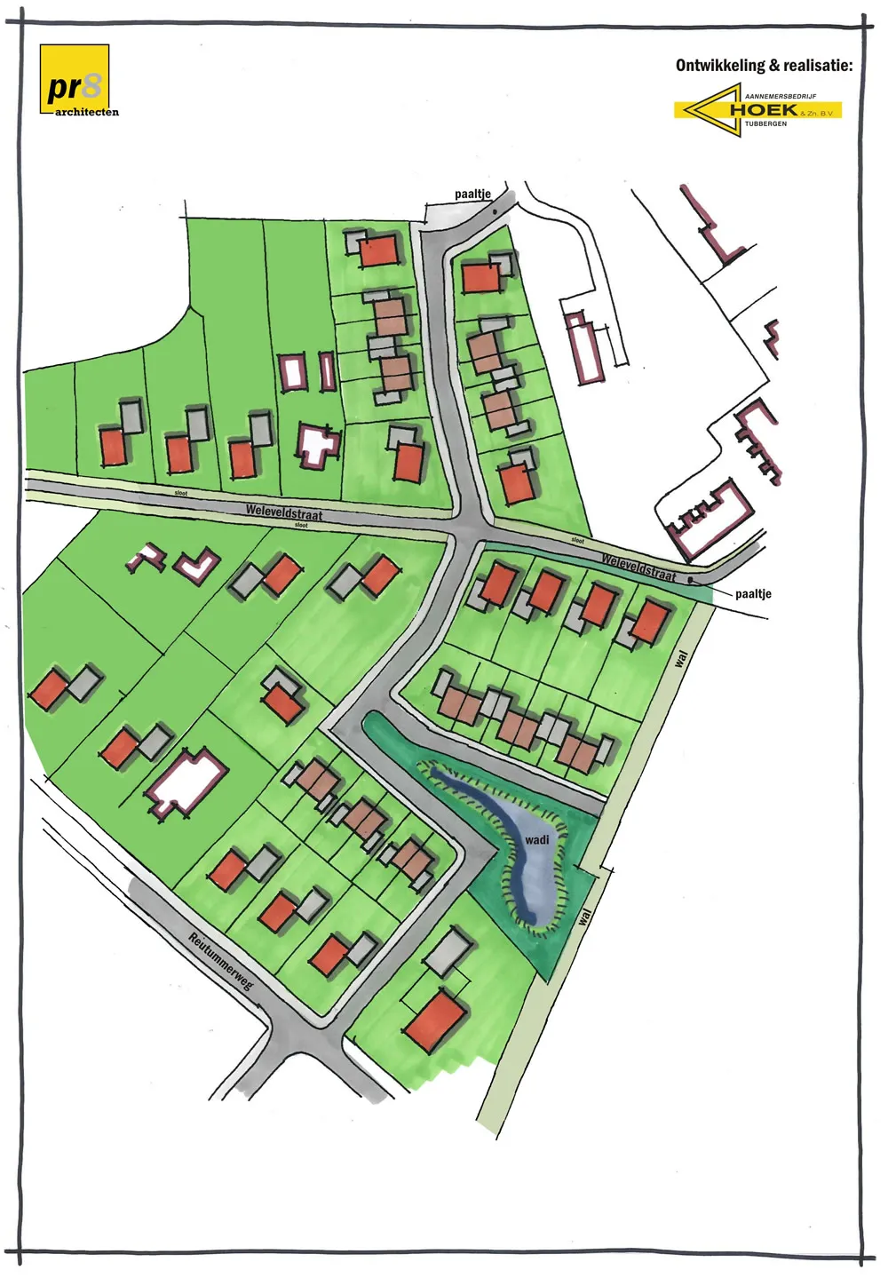
Als het aan de bouwfirma Hoek ligt, krijgt Kapper Huub een aantal buren. Het bedrijf uit Tubbergen heeft vergevorderde plannen voor een nieuwbouwplan nabij de Reutummerweg, een zogeheten inbreidingslocatie.
Gisteravond werd, tijdens de vergadering van de raadscommissie Ruimte en Economie, de nieuwe beleidsnota inbreidingslocaties besproken. De gemeente Tubbergen wil deze aanpassen 'aan de tijd', net als de woonvisie en het daarmee samenhangend woningbouwprogramma. Inbreiding, het bouwen op grond die binnen de dorpskern is gelegen, heeft daarbij de voorkeur van het college van burgemeester en wethouders. Aannemersbedrijf Hoek komt aan die wens tegemoet, zo laat het weten.
"We denken dat het wel terecht is dat de gemeente kiest voor inbreiding i.p.v. uitbreiding", aldus de directie van Aannemersbedrijf Hoek & Zonen. "De tijden zijn anders en de behoefte van woningkopers idem. Tegelijkertijd moet je niet stil blijven staan en dus meegaan met die trends. Dit proberen wij als bouwbedrijf altijd te doen en dat is in het geval van de mogelijke bouwlocatie tussen de Reutummerweg en de Weleveldstraat niet anders. Voor het dorp zou dit betekenen dat er zich weer jonge gezinnen kunnen vestigen, dat jongeren en starters op de woningmarkt een kans krijgen en dat er een goede invulling komt voor het plangebied."
Initiatiefnemer Hoek, dat het merendeel van de grondposities in bezit heeft, heeft reeds de handen ineengeslagen met de overige grondeigenaren op deze voorgenomen bouwlocatie. Dat blijkt ook uit stukken die de gemeenteraad inmiddels toegezonden is. De buren rondom zijn eveneens al akkoord met het voorstel, bevestigd de firma Hoek. "Ook heeft in opdracht van het college van B&W een stedenbouwkundige de locatie bestudeerd en daarna een voorstel opgesteld. Het is een mooi bouwplan geworden, waarbij er voldaan wordt aan de wens voor jongerenwoningen, maar ook levensbestendige en zoveel mogelijk energieneutraal."
Aannemersbedrijf Hoek wil de nieuwbouwplannen graag nader toelichten tijdens een raadsvergadering, om de verschillende politieke partijen persoonlijk te informeren. "Uiteraard is er nog ruimte voor aanpassingen van het plan, het gaat ons er enkel en alleen om of de raad openstaat voor het ontwikkelen van dit gebied."